
- TypologyCommercial / Interior
- StatusCompleted (2024)
- LocationZagreb, Lower Town
- ClientSaša Pušenjak (Owner of a salon)
- Year2024
- Size50 m²
- ScopeConcept, Interior Design, Project Management
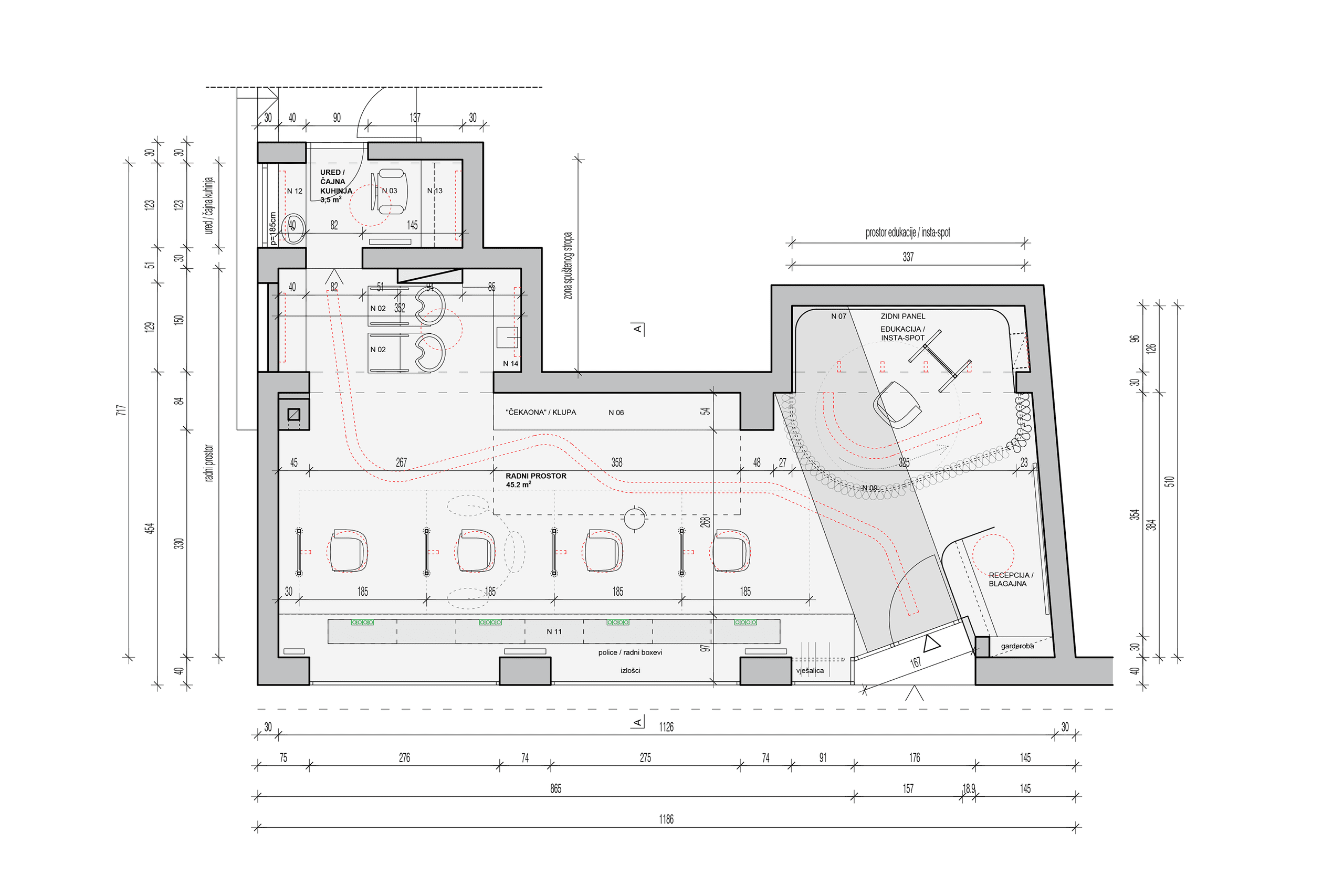
Concept
The interior of Sasha Hair Salon reimagines the typical hairdressing experience through an unexpected urban metaphor. The concept draws inspiration from a tram stop and a tram ride—an urban situation familiar to residents of Zagreb.
Clients first enter a waiting zone conceived as a “station,” where benches evoke the atmosphere of a tram platform. From there, the experience continues as a symbolic journey: each styling seat becomes a private “seat in the tram,” allowing clients to participate in the shared atmosphere of the salon while still maintaining a sense of personal space. This concept introduces a new typology of salon experience—one that balances intimacy with optional interaction, whether through conversation or simply visual connection with the surrounding environment.

Design
The design organizes the small interior into a sequence of micro-spaces that give each client a degree of privacy without isolating them from the collective rhythm of the salon. Mirrors subtly shield individual workstations, creating the feeling of being in one’s own protected niche while remaining part of a larger spatial narrative.
Lighting elements and curved spatial lines guide visitors through the interior, reinforcing the idea of movement and continuity—similar to the path of a tram line moving through the city.

Interior Language
The project deliberately avoids the conventional visual language of hair salons. Instead, the interior reflects the dynamism of urban life, translating the rhythm of the street into a compact architectural space.
The result is a hybrid environment: part social space, part personal retreat. Clients can engage with others, observe the activity of the salon, or remain immersed in their own moment of transformation.


A Gallery of Style
The interior transcends functional requirements by integrating the bold artwork of academic painter Jurica Pušenjak directly into the design identity. Clean architectural lines serve as a sophisticated canvas for these pieces, creating a unique hybrid atmosphere that functions as both a workspace and a contemporary art gallery.
International Impact
Exceptional design delivers global acclaim. The project was honored with the BIG SEE Interior Design Award 2025 in the Civic category, demonstrating Pulsar’s ability to deliver award-winning quality across all scales, turning local businesses into international design landmarks.







